
HOTEL
Hospitality Spaces, Engineered for Experience.
Progettiamo e realizziamo hotel e strutture ricettive con un sistema costruttivo integrato che unisce qualità architettonica, efficienza e rapidità esecutiva.
Built for Generations
HOTELS AT SCALE
GammaVilla sviluppa hotel progettati per offrire un’esperienza coerente e distintiva, ottimizzando al contempo i costi e le performance operative.
- Ottimizzazione delle camere e delle aree comuni
- Selezione di materiali e finiture di alto livello
- Progettazione coordinata di architettura e interior design
- Studio degli spazi esterni e delle amenities
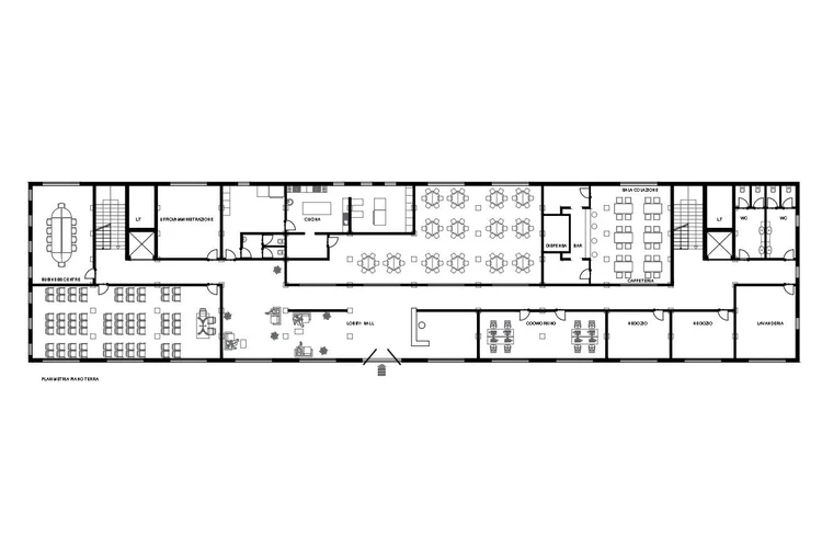
PIANTE
Scegli vista
L'EVOLUZIONE DELLA COSTRUZIONE
COSTO MEDIO DI COSTRUZIONE
La produzione industrializzata e il controllo del processo consentono di ridurre sprechi e inefficienze con un impatto diretto sul costo complessivo del progetto.
VELOCITA’ DI COSTRUZIONE
La realizzazione in fabbrica degli elementi consente di anticipare le fasi costruttive e ridurre drasticamente i tempi di cantiere, accelerando la consegna dell’edificio.
TOLLERANZE DIMENSIONALI
La produzione in ambiente controllato garantisce una precisione millimetrica, impossibile da ottenere con lavorazioni tradizionali eseguite interamente in cantiere.
PREVEDIBILITA’ DEL CANTIERE
Processi standardizzati e pianificati permettono di ridurre le variabili operative, offrendo maggiore certezza su tempi, costi e qualità finale dell’opera.
SOSTENIBILITA’ DI TUTTO IL PROGETTO
La riduzione degli sprechi e la diminuzione delle lavorazioni in cantiere rendono il processo costruttivo più efficiente dal punto di vista ambientale.
SCALABILITA’ DEL SISTEMA
Un sistema industrializzato consente di replicare lo stesso livello qualitativo su progetti di diversa scala, mantenendo prestazioni costanti e tempi certi anche su grandi volumi.
COSTRUZIONE
NUOVO SISTEMA COSTRUTTIVO
La tecnologia PreBuild ARM™ trasforma l’edilizia in un processo industrializzato, preciso e controllato, grazie alla robotica avanzata e alla produzione in cemento armato.
- Produzione robottizata
- Precisione millimetrica
- Struttura in cemento armato
- Innovazione e sostenibilità
EXTERIOR DESIGN
Materiali di pregio e soluzioni architettoniche moderne esaltano la bellezza degli esterni, offrendo ambienti accoglienti e raffinati, perfetti per il relax e la convivialità.
INTERIOR DESIGN
GammaVilla sviluppa soluzioni integrate che combinano estetica, funzionalità e durabilità, garantendo coerenza tra architettura, struttura e design.












