
STUDENTHOUSING
Student Living, Designed for Flexibility.
Progettiamo e realizziamo residenze per studenti con un sistema costruttivo avanzato che garantisce efficienza, rapidità e qualità abitativa.
Built for Generations
STUDENT HOUSING AT SCALE
GammaVilla sviluppa studentati progettati per ottimizzare spazi, costi e gestione operativa, mantenendo comfort e funzionalità.
- Ottimizzazione delle unità abitative e degli spazi comuni
- Selezione di materiali resistenti e a bassa manutenzione
- Progettazione di ambienti funzionali e condivisi
- Studio di spazi sociali e aree esterne
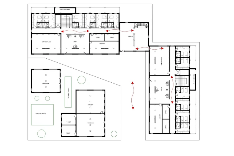
ESEMPI DI LAYOUT
Scegli vista
L'EVOLUZIONE DELLA COSTRUZIONE
COSTO MEDIO DI COSTRUZIONE
La produzione industrializzata e il controllo del processo consentono di ridurre sprechi e inefficienze con un impatto diretto sul costo complessivo del progetto.
VELOCITA’ DI COSTRUZIONE
La realizzazione in fabbrica degli elementi consente di anticipare le fasi costruttive e ridurre drasticamente i tempi di cantiere, accelerando la consegna dell’edificio.
TOLLERANZE DIMENSIONALI
La produzione in ambiente controllato garantisce una precisione millimetrica, impossibile da ottenere con lavorazioni tradizionali eseguite interamente in cantiere.
PREVEDIBILITA’ DEL CANTIERE
Processi standardizzati e pianificati permettono di ridurre le variabili operative, offrendo maggiore certezza su tempi, costi e qualità finale dell’opera.
SOSTENIBILITA’ DI TUTTO IL PROGETTO
La riduzione degli sprechi e la diminuzione delle lavorazioni in cantiere rendono il processo costruttivo più efficiente dal punto di vista ambientale.
SCALABILITA’ DEL SISTEMA
Un sistema industrializzato consente di replicare lo stesso livello qualitativo su progetti di diversa scala, mantenendo prestazioni costanti e tempi certi anche su grandi volumi.
COSTRUZIONE
NUOVO SISTEMA COSTRUTTIVO
La tecnologia PreBuild ARM™ trasforma l’edilizia in un processo industrializzato, preciso e controllato, grazie alla robotica avanzata e alla produzione in cemento armato.
- Produzione robottizata
- Precisione millimetrica
- Struttura in cemento armato
- Innovazione e sostenibilità
EXTERIOR DESIGN
Materiali di pregio e soluzioni architettoniche moderne esaltano la bellezza degli esterni, offrendo ambienti accoglienti e raffinati, perfetti per il relax e la convivialità.
INTERIOR DESIGN
GammaVilla sviluppa soluzioni integrate che combinano estetica, funzionalità e durabilità, garantendo coerenza tra architettura, struttura e design.















