
MULTIFAMILY
Urban Living, Engineered for Efficiency.
We design and deliver multifamily buildings through an integrated construction system that ensures predictable timelines, consistent quality and maximum efficiency.
Built for Generations
MULTIFAMILY AT SCALE
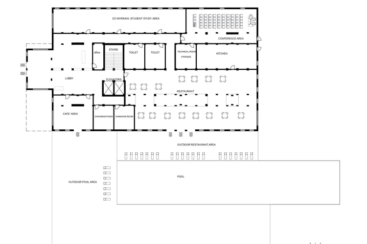
GammaVilla provides flexible design solutions for large-scale residential developments, optimizing layouts, costs and investment performance.
- Optimization of residential layouts and usable areas
- Modular selection of materials and specifications
- Integrated design of interiors and shared spaces
- Analysis of urban context and outdoor areas
Choose view
AVERAGE CONSTRUCTION COST
Industrialized production and process control reduce waste and inefficiencies, directly impacting the overall cost of the project.
CONSTRUCTION SPEED
The factory-made construction of the elements allows for the construction phases to be anticipated and drastically reduced construction times, speeding up the delivery of the building.
DIMENSIONAL TOLERANCES
Production in a controlled environment guarantees millimetric precision, impossible to achieve with traditional processes performed entirely on site.
PREDICTABLE CONSTRUCTION SITE
Standardized and planned processes reduce operational variables, offering greater certainty regarding time, costs, and final quality of the work.
SUSTAINABILITY OF THE ENTIRE PROJECT
Reducing waste and reducing construction site work makes the construction process more environmentally efficient.
SYSTEM SCALABILITY
An industrialized system allows you to replicate the same level of quality on projects of different scales, maintaining consistent performance and reliable lead times even on large volumes.
CONSTRUCTION
NEW CONSTRUCTION SYSTEM
PreBuild ARMâ„¢ technology transforms construction into an industrialized, precise and controlled process, thanks to advanced robotics and reinforced concrete production.
- Robotized production
- millimeter precision
- reinforced concrete structure
- innovation and sustainability
EXTERIOR DESIGN
High-quality materials and modern architectural solutions enhance the beauty of the exteriors, offering welcoming and refined spaces, perfect for relaxation and conviviality.
INTERIOR DESIGN
GammaVilla develops integrated solutions that combine aesthetics, functionality, and durability, ensuring coherence between architecture, structure, and design.













