
Overview
VILLA ID
CERRO AL LAMBRO - LOTTO 1
PROJECT
CERRO AL LAMBRO
TYPE
2 FLOORS VILLA
FLOORS
2 floors
PRICE
Price Upon Request
DELIVERY DATE
February 2027
BEDROOM
An intimate and elegant space, designed to offer comfort, silence and natural light.
3
BATHROOM
Functional and refined, designed with quality materials to ensure daily comfort.
2
LIVING ROOM
Spacious and convivial living area, with large windows for a perfect connection with the outside.
1
KITCHEN
Modern and well-equipped, designed to make meal preparation practical and stylish.
1
GARDEN
A private green oasis, to be enjoyed every day in relaxation and freedom.
1
Address
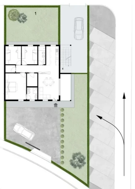
PLANT
Choose view
EXTERIOR DESIGN
DISCOVER THE EXTERIORS
GammaVilla's exterior design combines aesthetics and functionality, creating harmonious spaces in tune with the surrounding environment.
High-quality materials, thoughtful lighting, and modern architectural solutions enhance the beauty of the exterior, offering welcoming and refined spaces, perfect for relaxation and conviviality.
INTERIOR DESIGN
CHOOSE YOUR INTERIORS
A team of highly qualified designers will work with you to create the perfect villa, taking care of every aspect, from interior spaces to exterior architecture.
GammaVilla offers you maximum customization: every detail of your villa can be adapted to reflect your unique style, needs, and vision. From room layouts to finishes, materials, and technology, you have control over every choice through:
- Optimized spaces
- Exclusive materials
- Lighting and interior design
- Exterior landscape study
HOME AUTOMATION
DESIGNED WITH INTELLIGENCE
The GammaVilla integrates the home automation system, offering luxury, comfort and security with intuitive and highly efficient control of the home.
Your villa's home automation system
is connected to:
- A smartphone app
- A smart panel
- Virtual buttons












































